河南暖极人石墨烯科技有限公司主营:家用采暖设备,电热膜,电地暖,电采暖,电供暖,石墨烯地暖,石墨烯电地暖,石墨烯墙暖,石墨电地暖,智能电地暖,墙暖,电暖器,电暖画等

营业时间
周一至周六 8:00-18:00

联系电话
18137195000

工厂地址
河南省郑州市

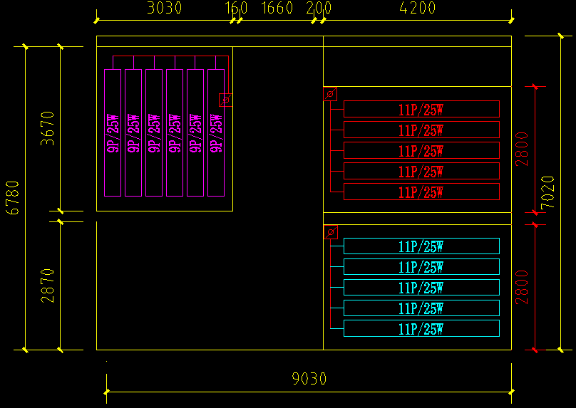
剑阁县石墨烯电地暖64.935平米山区农村自建房院落安装电热膜地暖;

微信图片_2025-11-13_203059_170.png

暖极人石墨烯电地暖厂家供货价格电话:18137195000;剑阁县石墨烯墙暖画石墨烯电热地毯石墨烯电采暖碳纤维电地暖发热电缆电地暖安装销售批发;

剑阁县石墨烯电地暖64.935平米山区农村自建房院落安装电热膜地暖;3.03*3.67米,1350W,4.2*2.8米*2,1375W*2,4.2*7.02米;广元市石墨烯电地暖 旺苍县石墨烯电地暖 青川县石墨烯电地暖 剑阁县石墨烯电地暖 苍溪县石墨烯电地暖

首页
电话
短信
联系