
暖极人石墨烯电地暖品牌厂家价格电话:18137195000;峨眉山石墨烯墙暖画既可以装饰又可以供暖,峨眉山石墨烯电热地毯既可以供暖又可以作为客厅卧室等活动空间地面的装饰等;
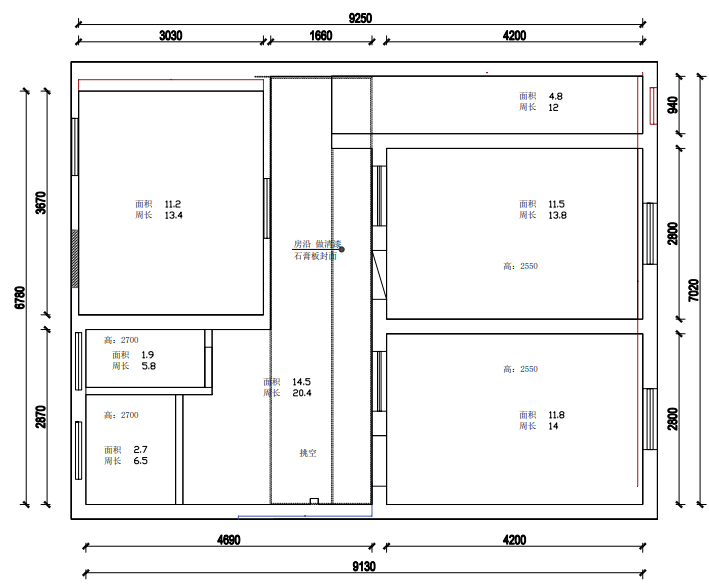
峨眉山市石墨烯电地暖9.13*6.78米房屋铺装电热膜智能地暖供暖系统;房屋尺寸3.03*3.67米,4.2*0.94米,2.8*4.2米,1.66*6.78米,11.2平米,4.8平米,11.5平米,11.8平米,1.9平米,2.7平米,14.5平米;乐山市石墨烯电地暖 峨眉山市石墨烯电地暖 犍为县石墨烯电地暖 井研县石墨烯电地暖 夹江县石墨烯电地暖 沐川县石墨烯电地暖 峨边彝族自治县石墨烯电地暖 马边彝族自治县石墨烯电地暖